259 000 €
Jolie Maison avec vue dégagée - 2 chambres sur soul sol complet
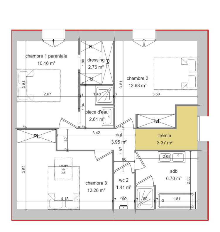
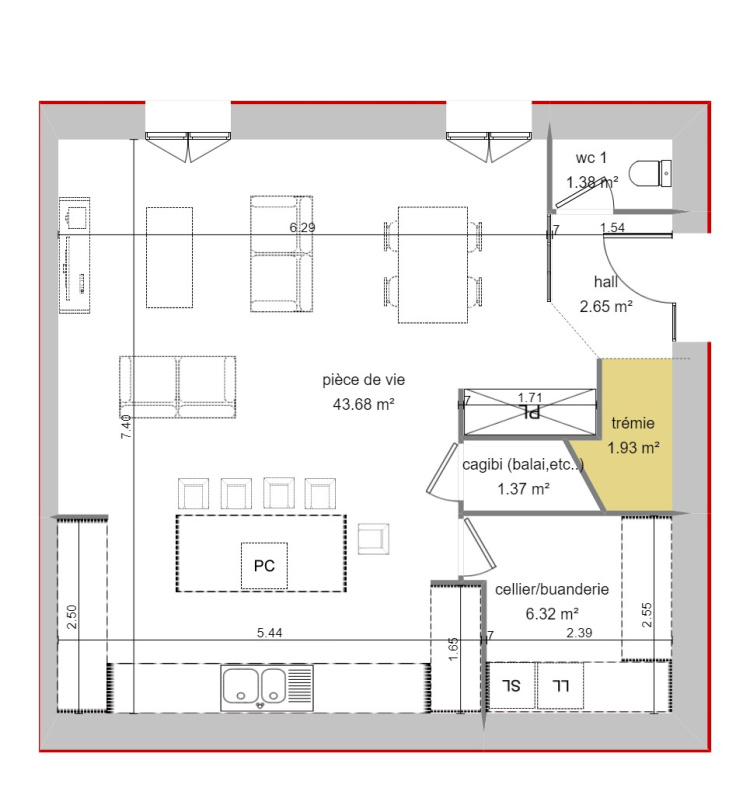
Maison 80m² 3 Pièces - Villefranche-Sur-Saône
- 80m²
- 723m²
- 1
- 2
259 000 €
255 000 €
255 000 €
254 000 €
253 000 €
250 000 €
249 000 €
249 000 €
249 000 €
249 000 €
remonter
