- Agence immobilière à Jassans-Riottier
- Vente
- Reyrieux
- Maison à Rénover - 180m²- 4 chambres- Terrain 250m²
Référence : LR2050
Calculette
Partager
Maison à Rénover - 180m²- 4 chambres- Terrain 250m²
Description de l'offre
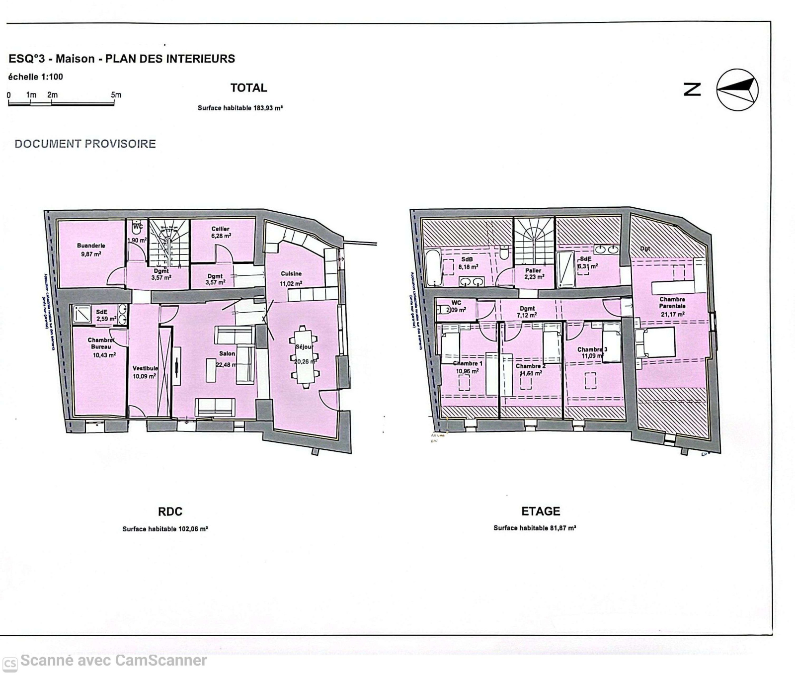
Exclusivité Amiltone Immobilier, Je vous propose ce bien à fort potentiel de 180m² habitables à rénover sur son terrain d'environ 250m² dans le village prisé de Reyrieux à moins de 7mn de l'autoroute A46. Deux approches possibles: Réhabilitation complète en un seul Lot pour création d'une maison familiale de 180m² ou Division en 2 Logements (1 appartement duplex de 55m² et 1 maison de 125m² environ). Que vous soyez à la recherche de votre résidence principale ou d'un projet d'investissement locatif les atouts de ce bien sont :Un prix au m² exceptionnel-Un emplacement recherché à Reyrieux-Un terrain privatif-Des plans intérieurs et des projections visuelles fournis. Chauffage radiateur Gaz de ville, DPE: F-GES: E. Assainissement "Tout à l'égout"."Les informations sur Ies risques auxquels ce bien est exposé sont disponibles sur le site Géorisques :http://www. georisques.gouv.fr". Rare à la vente ! Contactez moi rapidement: L.Rosner:O6.65.85.16.43 Statut agent commercial immatriculé au RSAC de Bourg en Bresse sous le N° 889 545 604.
Descriptif du bien
- Code postal : 01600
- Surface habitable (m²) : 180 m²
- surface terrain : 250 m²
- Surface loi Carrez (m²) : 180 m²
- Nombre de chambre(s) : 4
- Nombre de pièces : 5
- Nombre de niveaux : 2
- Nb de salle d'eau : 1
- Mode de chauffage : Gaz de ville
- Type de chauffage : Radiateur
- Format de chauffage : Individuel
- Nombre de parking : 3
- Exposition : SUD-OUEST
- Année de construction : 1900
- Copropriété : NON
- Prix de vente : 210 000 €
- Les honoraires d'agence seront intégralement à la charge du vendeur
Logement à consommation énergétique excessive : classe F
Montant estimé des dépenses annuelles d'énergie pour un usage standard est compris entre 2 460 € et 3 370 € . Prix moyens des énergies indexés sur les années 2021, 2022 et 2023 (abonnements compris).
La ville de Reyrieux (01600)
Nous Contacter
Les informations recueillies sur ce formulaire sont enregistrées dans un fichier informatisé par La Boite Immo agissant comme Sous-traitant du traitement pour la gestion de la clientèle/prospects de l'Agence / du Réseau qui reste Responsable du Traitement de vos Données personnelles.
La base légale du traitement repose sur l'intérêt légitime de l'Agence / du Réseau.
Elles sont conservées jusqu'à demande de suppression et sont destinées à l'Agence / au Réseau.
Conformément à la loi « informatique et libertés », vous disposez des droits d’accès, de rectification, d’effacement, d’opposition, de limitation et de portabilité de vos données. Vous pouvez retirer votre consentement à tout moment en contactant directement l’Agence / Le Réseau.
Consultez le site https://cnil.fr/fr pour plus d’informations sur vos droits.
Si vous estimez, après avoir contacté l'Agence / le Réseau, que vos droits « Informatique et Libertés » ne sont pas respectés, vous pouvez adresser une réclamation à la CNIL.
Nous vous informons de l’existence de la liste d'opposition au démarchage téléphonique « Bloctel », sur laquelle vous pouvez vous inscrire ici : https://www.bloctel.gouv.fr
Dans le cadre de la protection des Données personnelles, nous vous invitons à ne pas inscrire de Données sensibles dans le champ de saisie libre.
Ce site est protégé par reCAPTCHA, les Politiques de Confidentialité et les Conditions d'Utilisation de Google s'appliquent.
Partager l'offre
